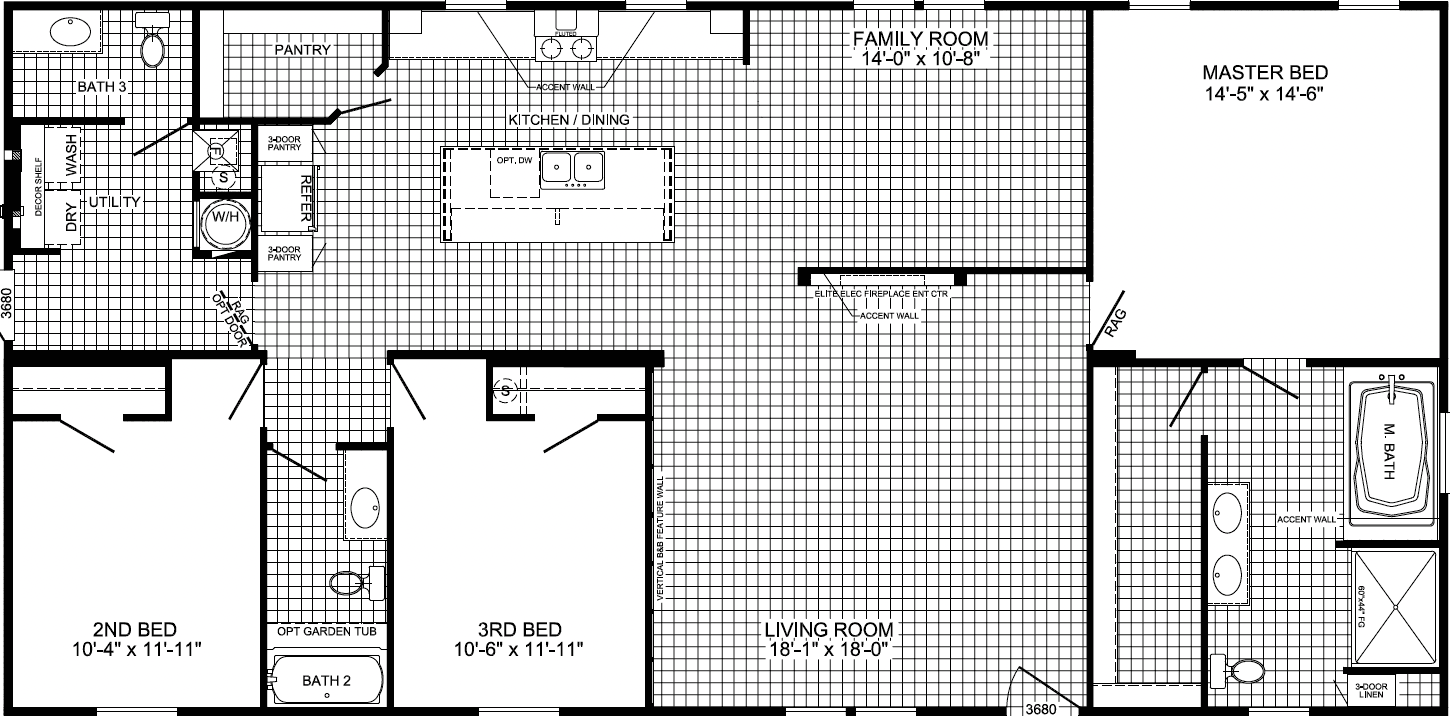
Homes | Sandy Point