Homes | The Hexagon
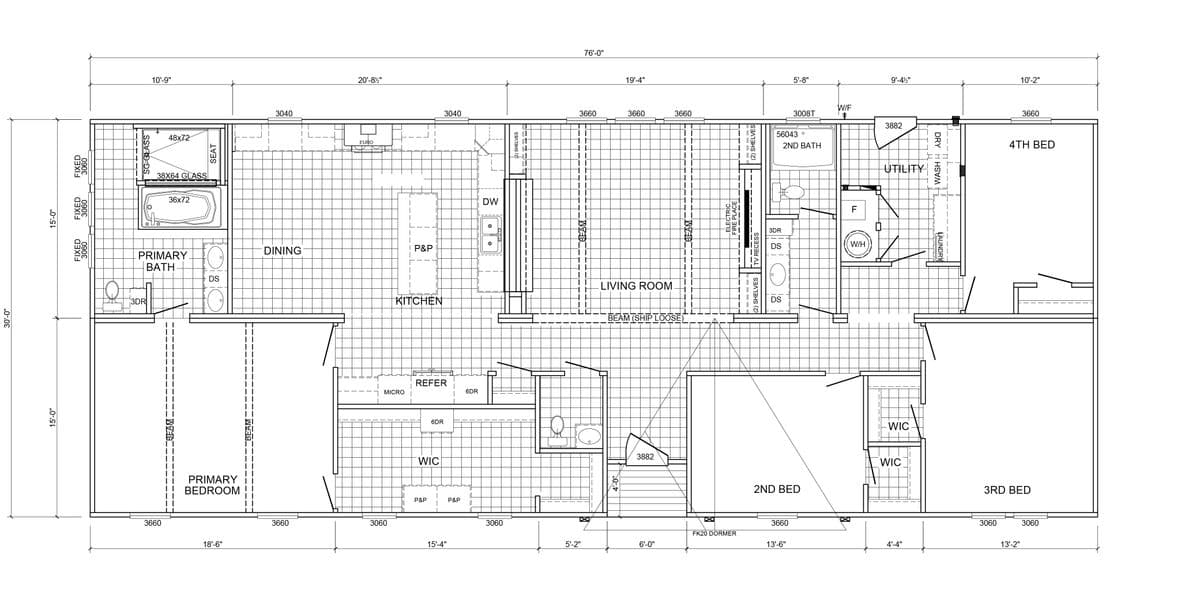
4 bedrooms
3 full bathrooms
2,256 sq. ft.
32' x 76'
Estate Homes standard features
Construction
Removable Hitches 2 x 6 Floor Joists 16” O.C. 23/32” T&G OSB Floors 8’-0” Wall Height 2 x 4 Exterior Walls 16” O.C. Truss Rafters 24” O.C. R22-14-38 Lux® Argon Gas Bronze Low-E Windows 36 x 80 Front Door Rear Door – Print Specific Kwikset® Locks 2 Panel Interior Doors 2” Faux Wood Blinds Heavy Duty Interior Door Hinges Murray Home Sales
Get started with Murray Home Sales
Find, design, and order your next home in a few clicks.
Sign up Property map Enter your address or APN to check if this home fits on your property
Removable Hitches 2 x 6 Floor Joists 16” O.C. 23/32” T&G OSB Floors 8’-0” Wall Height 2 x 4 Exterior Walls 16” O.C. Truss Rafters 24” O.C. R22-14-38 Lux® Argon Gas Bronze Low-E Windows 36 x 80 Front Door Rear Door – Print Specific Kwikset® Locks 2 Panel Interior Doors 2” Faux Wood Blinds Heavy Duty Interior Door Hinges Weatherwood Shingles – 3 Tab Fiberglass (25 Year) Vented overhangs Exterior 7/16” OSB Sheathing House Wrap Air Infiltration Barrier Vinyl Siding Cemplank Fascia
4 bedrooms
3 full bathrooms
2,256 sq. ft.
32' x 76'
8’-0” Wall Height
2 x 4 Exterior Walls 16” O.C.
Truss Rafters 24” O.C.
R22-14-38
Lux® Argon Gas Bronze Low-E Windows 36 x 80 Front Door Rear Door – Print Specific Kwikset® Locks 2 Panel Interior Doors 2” Faux Wood Blinds Heavy Duty Interior Door Hinges Interior
Congoleum Vinyl Sheet Flooring (3 colors) Standard All Areas Except Bedrooms Shaw® Carpet – 2 colors (Opt T/O) Rebond Pad White Mirror Molding Post Formed Laminate Countertops Flat Ceilings T/O 1/2” Finished Drywall Throughout, Including Closets (3 colors) Stipple Finished Ceilings No Drapes or Valances 36” Overhead Wood Cabinets Cabinet Hardware – Print Specific
Congoleum Vinyl Sheet Flooring (3 colors) Standard All Areas Except Bedrooms Shaw® Carpet – 2 colors (Opt T/O) Rebond Pad White Mirror Molding Post Formed Laminate Countertops
Flat Ceilings T/O 1/2” Finished Drywall Throughout, Including Closets (3 colors) Stipple Finished Ceilings No Drapes or Valances 36” Overhead Wood Cabinets Cabinet Hardware – Print Specific Mechanical
Plumbing Rheem® hybrid heat pump water heater Pex Water Supply with Whole House Shut-off PVC Drain Lines Exterior Recept (1) & Exterior Faucet (1) Shut off Valves Pfister® Metal Faucets T/O Fiberglass Tub – Per Print Fiberglass Shower – Per Print Elongated Toilets Square Ceramic Lavs 8” Stainless Steel Sink with Spring Faucet (optional farm sink) Electrical & Lighting Total electric home with 200 amp service (solar ready) Carrier Electric Furnace Floor Ducts ecobee® Programmable Thermostat Ceiling fan living room or primary bedroom Print Specific Wire and Brace for fan in all bedrooms. Can Lights Over Vanities w/b bedrooms
Plumbing Rheem® hybrid heat pump water heater Pex Water Supply with Whole House Shut-off PVC Drain Lines Exterior Recept (1) & Exterior Faucet (1) Shut off Valves Pfister® Metal Faucets T/O Fiberglass Tub – Per Print Fiberglass Shower – Per Print Elongated Toilets Square Ceramic Lavs
8” Stainless Steel Sink with Spring Faucet (optional farm sink) Electrical & Lighting Total electric home with 200 amp service (solar ready) Carrier Electric Furnace Floor Ducts ecobee® Programmable Thermostat Ceiling fan living room or primary bedroom Print Specific Wire and Brace for fan in all bedrooms. Can Lights Over Vanities w/b bedrooms Kitchen
Samsung® Stainless Steel Appliances Stainless steel side-by-side refrigerator Smooth-top range Stainless steel microwave Stainless steel dishwasher Hickory wood Cabinets Pot & pan drawers in kitchen Adjustable shelves in base & overhead cabinets Rolled edge counter tops with one row ceramic backsplash Hidden cabinet door hinges Hammered steel cabinet pulls Drawer over door construction
Samsung® Stainless Steel Appliances Stainless steel side-by-side refrigerator Smooth-top range Stainless steel microwave Stainless steel dishwasher Hickory wood Cabinets
Pot & pan drawers in kitchen Adjustable shelves in base & overhead cabinets Rolled edge counter tops with one row ceramic backsplash Hidden cabinet door hinges Hammered steel cabinet pulls Drawer over door construction Exterior
Weatherwood Shingles – 3 Tab Fiberglass (25 Year) Vented overhangs Exterior 7/16” OSB Sheathing House Wrap Air Infiltration Barrier Vinyl Siding Cemplank Fascia
Weatherwood Shingles – 3 Tab Fiberglass (25 Year) Vented overhangs Exterior 7/16” OSB Sheathing
House Wrap Air Infiltration Barrier Vinyl Siding Cemplank Fascia
2 x 4 Exterior Walls 16” O.C.
Truss Rafters 24” O.C.
R22-14-38
Lux® Argon Gas Bronze Low-E Windows
36 x 80 Front Door
Rear Door – Print Specific
Kwikset® Locks 2 Panel Interior Doors 2” Faux Wood Blinds Heavy Duty Interior Door Hinges Weatherwood Shingles – 3 Tab Fiberglass (25 Year) Vented overhangs Exterior 7/16” OSB Sheathing House Wrap Air Infiltration Barrier Vinyl Siding Cemplank Fascia Samsung® Stainless Steel Appliances Stainless steel side-by-side refrigerator Smooth-top range Stainless steel microwave Stainless steel dishwasher Hickory wood Cabinets Pot & pan drawers in kitchen Adjustable shelves in base & overhead cabinets Rolled edge counter tops with one row ceramic backsplash Hidden cabinet door hinges Hammered steel cabinet pulls Drawer over door construction
Samsung® Stainless Steel Appliances Stainless steel side-by-side refrigerator Smooth-top range Stainless steel microwave Stainless steel dishwasher Hickory wood Cabinets
Pot & pan drawers in kitchen Adjustable shelves in base & overhead cabinets Rolled edge counter tops with one row ceramic backsplash Hidden cabinet door hinges Hammered steel cabinet pulls Drawer over door construction
Congoleum Vinyl Sheet Flooring (3 colors) Standard All Areas Except Bedrooms Shaw® Carpet – 2 colors (Opt T/O) Rebond Pad White Mirror Molding Post Formed Laminate Countertops Flat Ceilings T/O 1/2” Finished Drywall Throughout, Including Closets (3 colors) Stipple Finished Ceilings No Drapes or Valances 36” Overhead Wood Cabinets Cabinet Hardware – Print Specific
Congoleum Vinyl Sheet Flooring (3 colors) Standard All Areas Except Bedrooms Shaw® Carpet – 2 colors (Opt T/O) Rebond Pad White Mirror Molding Post Formed Laminate Countertops
Flat Ceilings T/O 1/2” Finished Drywall Throughout, Including Closets (3 colors) Stipple Finished Ceilings No Drapes or Valances 36” Overhead Wood Cabinets Cabinet Hardware – Print Specific
Images of homes are solely for illustrative purposes and should not be relied upon. Images may not accurately represent the actual condition of a home as constructed, and may contain options which are not standard on all homes.
4 Bed | 3 Bath | 2,256 Sq. Ft. | 32' x 76'
The Big Easy 4 Bed | 3 Bath | 2,009 Sq. Ft. | 28' x 76'
The Riviera 4 Bed | 2 Bath | 2,176 Sq. Ft. | 32' x 68'
The Jackson 4 Bed | 2 Bath | 1,968 Sq. Ft. | 28' x 72'